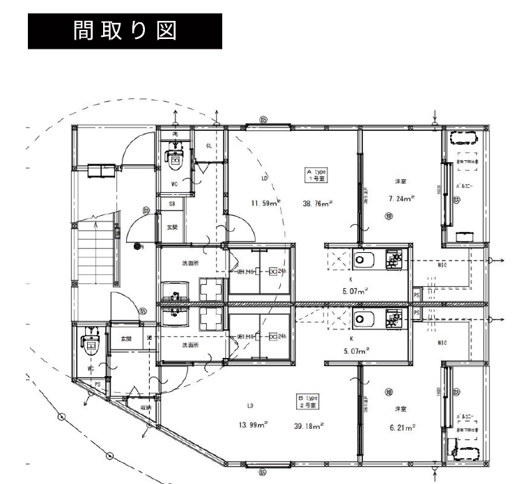
仲介物件 下関市武久町新築売アパート 価格 8,930万円 物件情報 間取り 1LDK×6戸 所在地 下関市武久町1丁目 校区 山の田小学校、山の田中中学校 建物構造 木造3階建て 土地面積 385.44㎡ 建物面積 233.85㎡ 築年数 新築 環境 第2種中高層住居地域、建ぺい率80%、容積率200%、JR幡生駅徒歩11分 設備 取引態様 仲介物件 アクセス この物件に関するお問い合わせ お電話でのお問い合わせはこちら 0834-33-0750 メールでのお問い合わせはこちら 問い合わせフォームへ 不動産一覧に戻る