
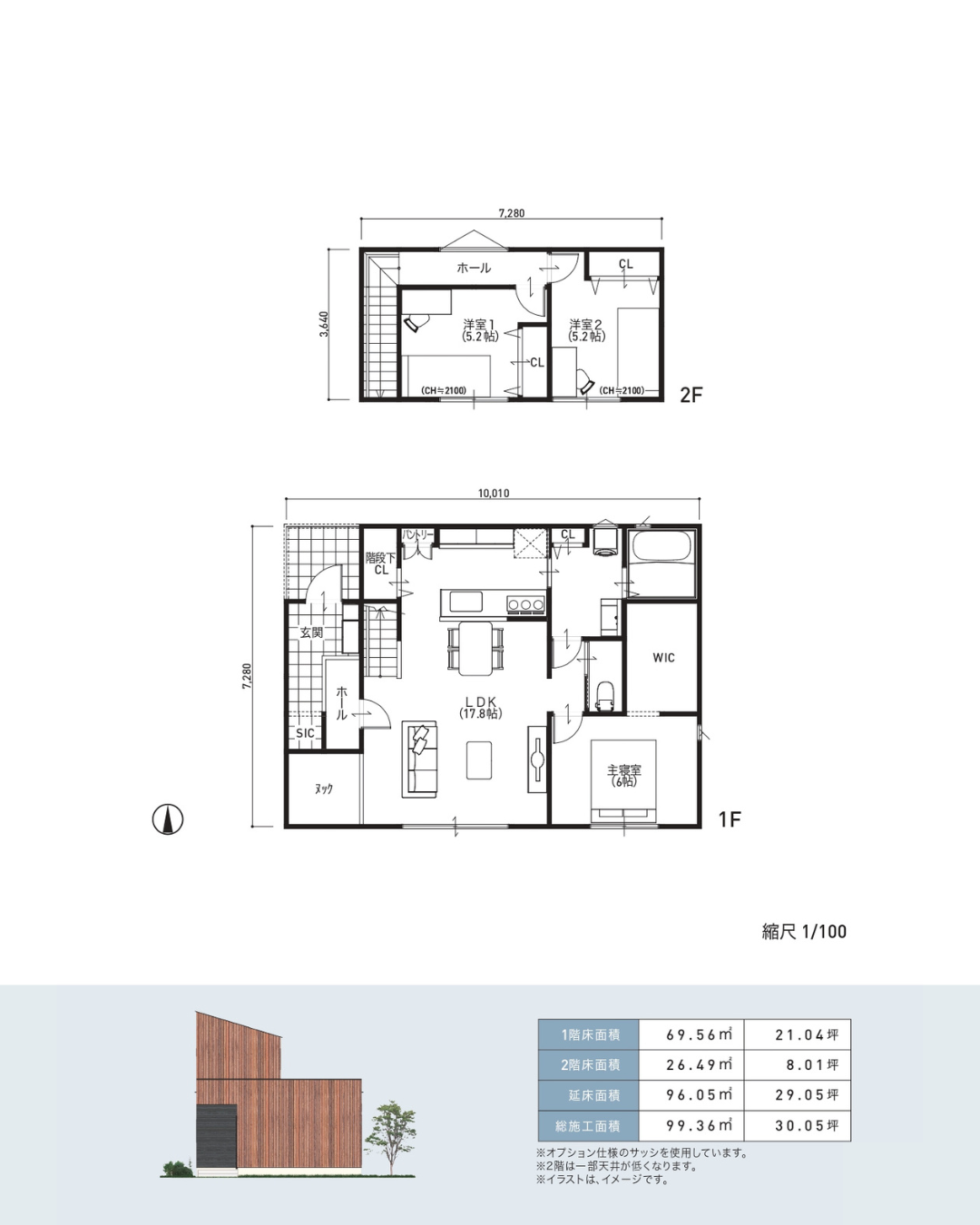
家の見た目が好きでも、
暮らしが合わなければ、心地よさは続かない。
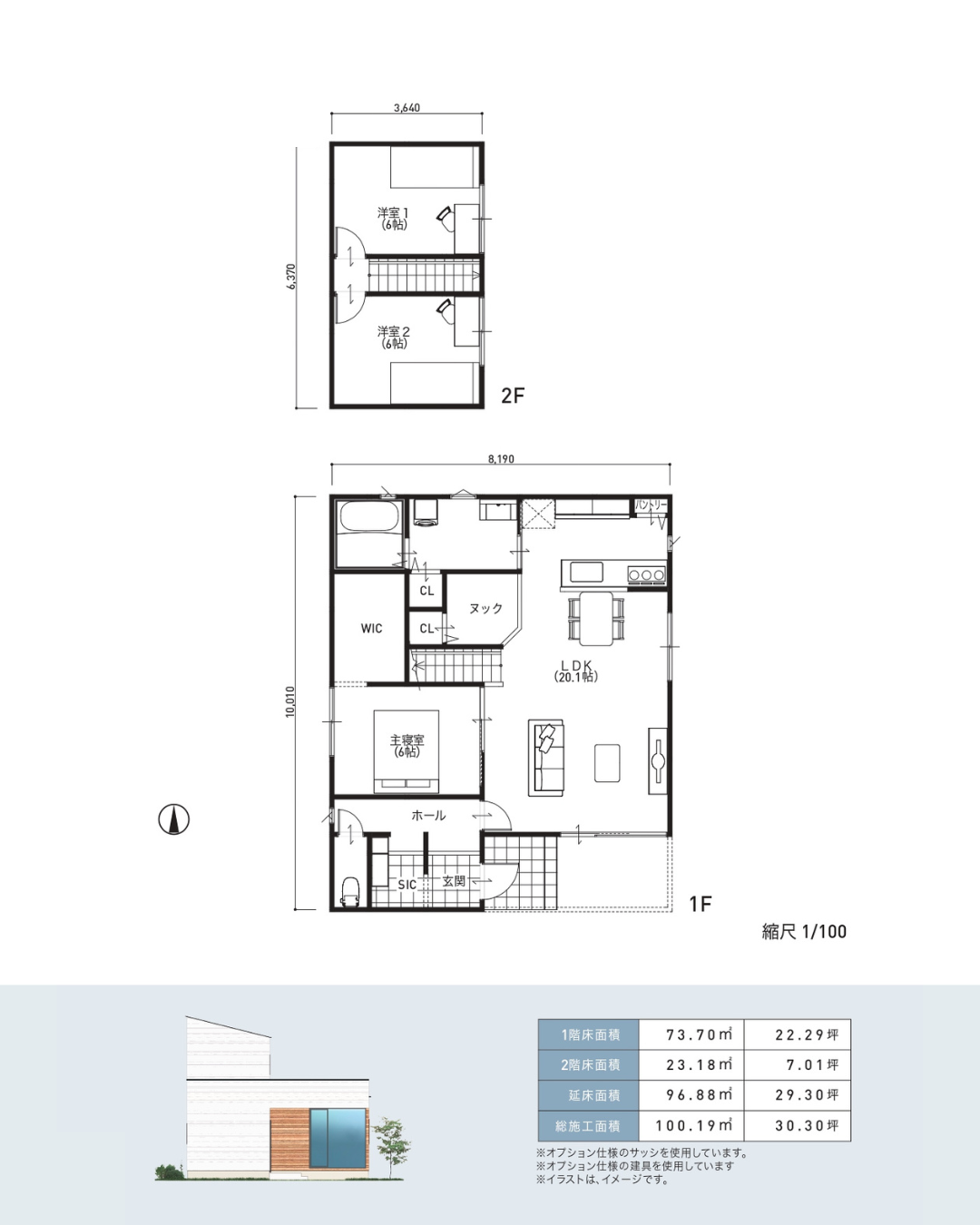
この住まいは、外観デザインは共通。
その中に、7つの間取りプランを用意しました。
家族の人数、生活リズム、将来の変化。
それぞれの「ちょうどいい」に合わせて選べるから、
今も、これからも、無理なく暮らせます🏠🌿

家の見た目が好きでも、
暮らしが合わなければ、心地よさは続かない。
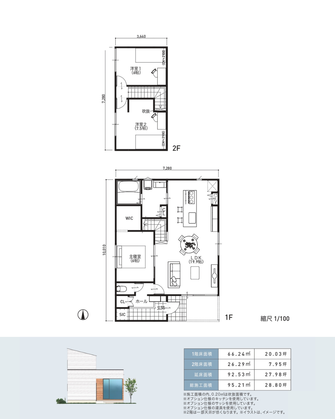
この住まいは、外観デザインは共通。
その中に、7つの間取りプランを用意しました。
家族の人数、生活リズム、将来の変化。
それぞれの「ちょうどいい」に合わせて選べるから、
今も、これからも、無理なく暮らせます🏠🌿